一、氣動隔膜調節閥 產品概述
上海川滬閥門有限公司生產的ZJSG氣動隔膜調節閥具有結構簡單、流路阻小、流通力較同口徑的其它閥大,無泄漏,能用于高粘度及懸浮顆粒流體的調節,根據隔膜材料的不同(橡膠或聚四氟乙烯)適用于調節強堿、強腐蝕性介質。由隔膜閥配用氣動薄膜執行機構組成。隔膜與閥體間"山"形凸出面進行密封,與外界隔離(無填料函)。
特點:
1、采用輕型執行機構,高度及重量均可減小30%。
2、閥體內表面有多種材料涂復層,避免介質直接接觸,承受強閥腐蝕性介質的腐蝕。
3、閥門關閉時,內、外泄漏量為零,特別適合于劇毒介質或不允許污染介質的閥節。
4、流路簡單,阻力小,額定流量系數比同口徑單座,套筒調節閥大。
適用場景:
氣動隔膜調節閥特點特別適合于要求耐腐蝕、劇毒場合。
二、氣動隔膜調節閥 產品圖片
 |
| 氣動隔膜調節閥 |
三、氣動隔膜調節閥 材質參數
氣動隔膜調節閥 零件材質
| 閥體 |
HT200、ZG230~450或下述材質襯里 |
| 隔膜 |
丁荃膠、天然膠、聚四氟乙烯波紋 |
| 薄膜 |
丁腈橡膠夾增強滌綸織物 |
| 彈簧 |
60S12Mn、閥體襯里材質及適用范圍 |
氣動隔膜調節閥 閥體襯里材質
| 閥體襯里 |
使用溫度(℃) |
適用介質 |
| 無襯里 |
-10~+175 |
適用于非腐蝕性介質 |
| 軟橡膠 |
-10~+85 |
有很好的耐磨性能,適用于水泥、粘土、煤塵、干燥化肥等 |
| 硬橡膠 |
-10~+85 |
適用于無機械、鹽類、鹽酸、鍍金屬溶液、軟水、氯化物、氯氣等 |
| 氯丁膠 |
-10~+105 |
適用于動物油、植物油和潤滑油,PH值變化范圍很大的腐蝕性泥漿。抗磨損性能良好 |
| 丁荃膠 |
-10~+120 |
防腐性能和耐磨性能良好,對大部分無機酸和酸性灰漿的耐蝕性好 |
| 陶瓷 |
-10~+175 |
適用于溫無機酸、氧化酸、鹵素、醇類、酯類等化合物 |
| F46 |
-10~+190 |
適用于硫酸、鹽酸、氫氧化鈉等強腐蝕介質 |
氣動隔膜調節閥 隔膜襯里材質
| 隔膜材質 |
使用溫度(℃) |
適用介質 |
| 丁荃膠(B級) |
-40~+100 |
大部分無機酸如:硫酸、氫氟酸、磷酸等適用,耐蝕性好,同時而各種堿和鹽類 |
| 天然膠(Q級) |
-50~+100 |
主要用于凈化水、無機鹽和烯的礦物酸介質 |
| 聚四氟乙烯 |
-10~+150 |
極優的化學穩定性、耐強酸、濃堿、強氧化劑的腐蝕 |
四、氣動隔膜調節閥 技術參數
| 公稱通徑(DN) |
15 |
20 |
25 |
32 |
40 |
50 |
65 |
80 |
100 |
125 |
150 |
200 |
250 |
| 閥座直徑(dn) |
20 |
25 |
32 |
40 |
50 |
65 |
80 |
100 |
125 |
150 |
200 |
250 |
300 |
| 流量系數 |
KV |
8 |
12 |
16 |
38 |
60 |
68 |
90 |
150 |
300 |
500 |
600 |
1200 |
1800 |
| 允許壓差(MPa) |
1.0 |
0.89 |
1.0 |
1.0 |
1.0 |
1.0 |
1.0 |
0.6 |
0.38 |
0.15 |
0.09 |
| 公稱壓力(MPa) |
1.6、2.5、4.0、6.4 |
| 額定行程(mm) |
10 |
16 |
25 |
40 |
60 |
100 |
| 配用執行器型號 |
ZHA/B-22 |
ZHA/B-23 |
ZHA/B-34 |
ZHA/B-45 |
/ |
| 閥蓋形式 |
標準型(-17~+250℃) |
| 壓蓋形式 |
螺栓壓緊式 |
| 閥芯形式 |
隔膜式 |
| 流量特性 |
快開特性 |
| 密封填料 |
V型聚四氟乙烯填料、含浸聚四氟乙烯石棉填料、石棉紡織填料、石墨填料 |
五、氣動隔膜調節閥 氣動薄膜執行機構參數
| 配置執行器類別 |
ZHA/B多彈簧簿膜執行機構 |
| 執行器型號 |
ZHA/B-22 |
ZHA/B-23 |
ZHA/B-34 |
ZHA/B-45 |
ZHA/B-56 |
| 有效面積(cm2) |
350 |
350 |
560 |
900 |
1400 |
| 行程(mm) |
10、16 |
24 |
40 |
40、60 |
100 |
| 彈簧范圍(KPa) |
20~100(標準)、20-60、60-100、40-200、80-240 |
| 膜片材料 |
丁腈橡膠夾尼龍布、乙丙橡膠夾尼龍布 |
| 供氣壓力 |
140~400KPa |
| 氣源接口 |
RC1/4" |
| 環境溫度 |
-30~+70℃ |
| 可配附件 |
定位器、空氣過濾減壓器、保位閥、行程開關、閥位傳送器、手輪機構等 |
| 作用形式 |
氣關式(B)—失氣時閥位開(FO);氣開式(K)—失氣時閥位關(FC) |
六、氣動隔膜調節閥 性能參數
| 項目 |
不帶定位器 |
帶定位器 |
| 基本誤差% |
±5.0 |
±1.0 |
| 回差% |
3.0 |
1.0 |
| 死區% |
3.0 |
0.4 |
| 始終點偏差% |
氣開 |
始點 |
±2.5 |
±1.0 |
| 始點 |
±5.0 |
±1.0 |
| 氣關 |
始點 |
±5.0 |
±1.0 |
| 終點 |
±2.5 |
±1.0 |
| 額定行程偏差% |
≤2.5 |
| 泄露量L/h |
0.01%×閥額定容量 |
| 可調范圍R |
30:1 |
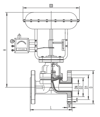
七、氣動隔膜調節閥 結構圖
八、氣動隔膜調節閥 連接尺寸
| 公稱通徑 |
外型安裝尺寸 |
| DO |
氣開 |
氣關 |
結構長度 L |
| DN15 |
285 |
479 |
532 |
125 |
| DN20 |
285 |
479 |
532 |
135 |
| DN25 |
285 |
479 |
532 |
145 |
| DN32 |
285 |
538 |
617 |
160 |
| DN40 |
285 |
553 |
632 |
180 |
| DN50 |
285 |
562 |
641 |
210 |
| DN65 |
360 |
754 |
855 |
250 |
| DN80 |
360 |
775 |
876 |
300 |
| DN100 |
360 |
857 |
958 |
350 |
| DN125 |
470 |
952 |
1077 |
400 |
| DN150 |
470 |
989 |
1114 |
460 |
| DN200 |
470 |
1084 |
1209 |
570 |
| DN250 |
580 |
1200 |
1200 |
680 |
| DN300 |
580 |
1235 |
1235 |
750 |
注:由于產品改進技術創新參數可能有一定變化,公司不另行通知,請咨詢公司技術部門索取新數據。