提供專業控制閥解決方案! 銷售熱線:021-5186 3046
上海川滬閥門有限公司
ShangHai Chuanhu Valve CO.,LTD
我們做的不僅是產品還是解決方案
川滬閥門品牌:電動球閥、電動蝶閥、氣動球閥、氣動蝶閥、電動調節閥、氣動調節閥
自力式調節閥、快速切斷閥、低溫閥門、耐腐蝕閥門、衛生級閥門、截止閥、閘閥
電動執行器、氣動執行器
新聞資訊/NEWS
17種截止閥的類型特點及選用(圖文并茂)
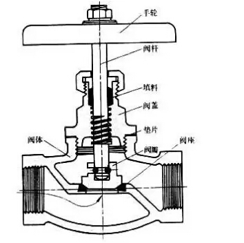
截止閥(stopvalve,GlobeValve)的啟閉件是塞形的閥瓣,密封面呈平面或錐面,閥瓣沿流體的中心線作直線運動。閥桿的運動形式,有升降桿式(閥桿升降,手輪不升降),也有升降旋轉桿式(手輪與閥桿一起旋轉升降,螺母設在閥體上)。截止閥只適用于全開和全關,不允許作調節和節流。
1、針型截止閥
它是作為精確的流量控制用的。閥瓣通常于閥桿做成一體,它有一個與閥座配合、精度非常高的針妝頭部。而且針型截止閥閥桿螺紋的螺距比一般普通截止閥的閥桿螺紋螺距要細。在通常情況下,針型截止閥閥座孔的尺寸比管道尺寸小。因此,它通常只限于在公稱通徑小的管線中適用,更多的用于取樣閥。
2、直流式截止閥
直流式截止閥的閥桿和通道成一定的角度,其閥座密封面與進出口通道也有一定的角度,閥體可制成整體式或分開式。閥體分開式截止閥用兩閥體把閥座夾在中間,便于維修。這類截止閥使流體幾乎不改變流動方向,在截止閥中流阻小。閥座和閥瓣密封面可堆焊硬質合金,使整個閥門更耐沖刷和腐蝕,非常符合于氧化鋁生產工藝流程中的管路控制,同時也適合于有結焦和固體顆粒的管道中。
3、角式截止閥
角式截止閥的大優點是可以把閥門安裝在管路系統的拐角處,這樣既節約了90°彎頭,又便于操作。因此,這類閥門適合在化肥廠的合成氨生產系統中和制冷系統中采用。如J44H-160、J44H-320、L44H-160、L44H-320就完全是為合成氨生產系統而設計的。
4、鋼球或瓷球密封截止閥
該閥的結構特點是閥體分為連體式和分體式,閥瓣為STL硬質合金鋼球或為非晶材料經制粉成形、高溫燒結、精研制成的瓷球。閥桿下端滾壓包絡球體在閥桿球孔內,球體在閥桿的球孔內做三維轉動時可產生無數條密封線,大大增加了密封面的使用壽命,還能保證可靠的密封。
該閥由于受球體密封的限制,一般都用于較小的公稱通經,約為6~25mm。該閥適用于核電廠、火電廠的高溫高壓蒸汽管路,取樣、排污系統的儀表管路以及石化、化工系統中的耐溫、耐壓、耐磨損、耐腐蝕的管路上。
5、高溫高壓電站截止閥
該閥的結構特點是閥體與閥蓋的連接均采用壓力自緊密封式或夾箍式,閥體與管路的連接形式為對接焊連接,閥體材料多采用鉻鉬鋼或鉻鉬釩鋼,密封面大都堆焊硬質合金。
因此,該類閥門耐高溫高壓,抗熱性好;密封面耐磨損、耐擦傷、耐腐蝕,密封性能好,壽命長。適用于火電工業系統、石油化工系統及冶金等的高溫高壓、蒸汽、油品、過熱蒸汽的管路上。
>6、襯氟截止閥
襯氟截止閥的啟閉件是塞形的閥瓣,密封面呈平面或錐面,閥瓣沿流體的中心線作直線運動。閥桿的運動形式,有升降桿式(閥桿升降,手輪不升降),也有升降旋轉桿式(手輪與閥桿一起旋轉升降,螺母設在閥體上)。
截止閥只適用于全開和全關,不允許作調節和節流。襯氟截止閥適用在-50~150℃的各種濃度的王水、硫酸、鹽酸、氫氟酸和各種有機酸、強酸、強氧化劑,還適用于各種濃度的強堿有機溶劑以及其它腐蝕性氣體,液體介質的管路上使用.
7、保溫截止閥
保溫截止閥的啟閉件是塞形的閥瓣,密封面呈平面或錐面,閥瓣沿流體的中心線作直線運動。閥桿的運動形式,有升降桿式(閥桿升降,手輪不升降),也有升降旋轉桿式(手輪與閥桿一起旋轉升降,螺母設在閥體上)。
紋管截止閥只適用于全開和全關,不允許作調節和節流。保溫截止閥,是主要用于石油、化工、冶金、制藥等各類系統中,以輸送常溫下會凝固的高粘度介質,是BJ45W直流夾套保溫截止閥的保溫夾套焊裝于閥門的兩法蘭之間,閥門的側面、底部設置有保溫夾套的兩個連接口。直流保溫截止閥特別適用于化工、化肥行業的管路上,夾套內涵入蒸汽能防止介質結晶。保溫截止閥被廣泛應用于石油、化工、冶金、制藥等各類系統中。
8、電動法蘭截止閥
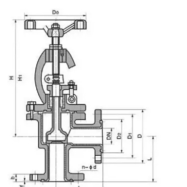
電動法蘭截止閥和法蘭閘閥是同屬一個類型的閥門,由電動執行機構或氣動執行機構和截止閥兩部分組成,區別在它的關閉件是個閥體,閥體繞閥體中心線作旋轉來達到開啟、關閉的一種閥門。
閘閥在管路中主要用來做切斷、分配和改變介質的流動方向。 適用范圍廣,通徑從小到幾毫米,大到幾米,從高真空至高壓力都可應用。
9、API截止閥
該類截止閥嚴格參照ASMEB16.34標準進行設計;閥體與閥蓋的連接、填料函、閥桿螺母的安裝、上密封等均嚴格按照API600進行設計。閥門選材完全符合API600要求。結構長度符合ASMEB16.10;法蘭連接尺寸符合ANSI/ASMEB16.5a。閥門的檢驗與試驗嚴格按照API598進行。因此,該閥廣泛適用石油化工管路,在電力、冶金、紡織等系統也適用。
10、氧氣管路用截止閥
該閥嚴格按氧氣管路的要求進行設計。填料箱部分嚴格密封,外界污物絕對不能進入填料箱內。閥體兩端法蘭有接地裝置,在管路上安裝完畢后,應接地,嚴防靜電起火。本閥門的殼體材料為奧氏體不銹鋼或銅材,導電好、不易發生靜電起火。
密封到材料為聚四氟乙烯對閥體本體材料,為軟密封,密封性能好,氣體檢驗泄漏量為零。本閥門在組裝前嚴格經四氯化碳脫脂處理,絕對沒有油脂和污物,不致引起靜電起火。該閥適用于冶金系統的氧氣管路,在其他行業的氧氣管路上也適用。
11、石油液化氣截止閥
該閥專為石油液化氣的管路或裝置設計。結構上注意了防火要求。填料采用聚四氟乙烯,密封可靠、絕對物外漏。密封副材料采用聚四氟乙烯或尼龍對閥體本體材料,為軟密封,密封可靠。該閥適用于液化石油氣管路系統,作為啟閉裝置,也適用于其他溫度≤80℃的管路。
12、上螺紋閥桿截止閥
上螺紋閥桿截止閥:截止閥閥桿的螺紋在閥體的外面。其優點是閥桿不受介質侵蝕,便于潤滑,此種結構采用比較普遍。
該類截止閥的閥桿不與工作介質直接接觸。根據殼體材料、密封副材料、填料材料、閥桿材料不同,適用于不同的工況。若閥體、閥蓋材料為碳素鋼,密封副材料為合金鋼,填料為柔性石墨,閥桿材料為Cr13系不銹鋼,適用于水、蒸汽、油品管路;若閥體和閥蓋材料為1Cr18Ni9或0Cr18Ni9,密封副材料為閥體本身材料或硬質合金,填料為聚四氟乙烯,閥桿材料為Cr17Ni2,適用于以硝酸為基的腐蝕性介質管路或裝置上;若閥體閥蓋材料為1Cr18Ni12Mo2Ti或0Cr18Ni12Mo2Ti,密封副材料為閥體本身材料或硬質合金,填料為聚四氟乙烯,閥桿材料為1Cr18Ni12Mo2Ti,適用于以醋酸為主的腐蝕性介質管路或裝置上。
不過該類截止閥的大公稱通經為200mm,200以上的截止閥要設旁通閥或設計上設置內旁通結構。一般,DN≥200mm的截止閥的進口端都在閥瓣的上方,即高進低出,這是為了防止關閉時太費力和閥桿過粗的緣故。
13、下螺紋閥桿截止閥
下螺紋閥桿截止閥:截止閥閥桿的螺紋在閥體內。這種結構閥桿螺紋與介質直接接觸,易受侵蝕,并無法潤滑。此種結構用于小口徑和溫度不高的地方。
該類截止閥阿的閥桿螺紋直接與工作介質接觸,直接受介質的侵蝕,使閥桿螺紋易銹蝕、造成啟閉費力。此種結構的截止閥其公稱通經都比較小,一般在6~50mm之間,大部分用在儀表閥和取樣閥。
14、API602鍛鋼截止閥
該類截止閥按美國石油協會標準API602進行設計,閥體和閥蓋碳鋼或不銹鋼鍛造而成,閥體和閥蓋連接有螺栓連接、螺紋連接加焊接,有上螺紋閥桿和下螺紋閥桿之分,密封副材料為Cr13鋼、不銹鋼酸鋼對STL硬質合金,填料為柔性石墨或聚四氟乙烯,連接方式有法蘭、螺紋、承插焊和對接焊,壓力等級為CL150~CL1500,公稱通經為1/4~2in。
該類截止閥廣泛地應用于石油化工、電力、化工等部門地裝置和管路上,工作介質為蒸汽、油品,腐蝕性介質。結構長度按ASMEB16.10,法蘭連接尺寸按ASME/ANSIB16.5a,焊端尺寸符合ASMEB16.25,承插焊孔尺寸符合ANSIB16.11,螺紋連接端尺寸符合ANSIB1.20.1。
15、柱塞截止閥
該類柱塞閥屬徑向密封,由套在磨光柱塞上地兩個彈性密封圈來實現。兩個彈性密封圈用一個套環隔離開,并通過閥體與閥蓋地連接螺栓施加在閥蓋上地載荷把柱塞周圍地彈性密封圈壓牢,保證密封。該閥地材料組合為殼體用碳鋼,柱塞用Cr13不銹鋼,密封圈用柔性石墨,可用于水、蒸汽、油品地管路;若殼體用不銹耐酸鋼,柱塞用不銹耐酸鋼,密封圈用聚四氟乙烯,適用于酸、堿類腐蝕性介質。
該閥地優點是密封可靠,壽命比較長,維修簡便;缺點是啟閉速度慢。該類閥門廣泛應用于城建系統,城市供熱中的水、蒸汽管路上。
16、波紋管截止閥
波紋管截止閥也叫波紋管密封截止閥,通過自動滾焊焊接,在流體介質和大氣之間形成一個金屬屏障,確保閥桿零泄漏的設計。波紋管截止閥內部采用波紋管結構,不銹鋼的波紋管下端焊接在閥桿上,以防止工藝流體浸蝕閥桿。另一端置于閥體和閥蓋之間構成靜密封。采用雙重的密封設計若波紋管失效閥桿填料也會避免泄漏,波紋管焊于閥桿保持穩定的運行性能,避免由于閥塞振動引起閥桿振動。適用于蒸汽、易燃、易爆、導熱油、高純度、有毒等介質的管路上。
17、直通截止閥
直通截止閥的介質進出口通道在同一個方向,呈180°,這種形式的截止閥,使流動狀態的破壞程度相對減小,因此通過閥門的壓力損失也相應減少。它依靠閥桿壓力,使閥瓣密封面與閥座密封面緊密結合,陰止介質流通。在啟閉過程中密封面之間摩擦力小,耐磨,開啟高度小,制造工藝性能好等特點,與閘閥相比,截止閥的結構較簡單,制造和維修都比較方便。它是工業部門中使用廣泛的一種閥門。
截止閥的選擇原理:
1、高溫、高壓介質的管路或裝置上宜選用氣動截止閥。如火電廠、石油化工系統的高溫、高壓管路上;
2、管路上對流阻要求不嚴的管路上應選用直流式截止閥;
3、小型氣動截止閥可選用針閥、儀表閥、取樣閥、壓力計閥等;
4、有流量調節或壓力調節,但對調節精度要求不高,而且管路直徑又比較小,如公稱通經≤50mm 的管路上,好選用氣動截止閥;
5、合成工業生產中的小化肥和大化肥宜選用公稱壓力PN160 公稱壓力16MPa 或PN320 公稱壓力32MPa 的高壓角式截止閥或高壓角式節流閥;
6、氧化鋁拜耳法生產中的脫硅車間、易結焦的管路上,易選用閥體分開式、閥座可去處的、硬質合金密封副的直流式截止閥或直流式節流閥;
7、城市建設中的供水、供熱工程上,公稱通經較小的管路,可選用氣動截止閥、平衡閥或柱塞閥,如公稱通經小于150mm的管路上。
截止閥結構比閘閥簡單,制造與維修都較方便。這也是其得到廣泛使用的根本因素。
上海川滬閥門專業生產電動調節閥、氣動調節閥、電動單座調節閥、氣動單座調節閥、電動套筒調節閥、氣動套筒調節閥等調節閥產品,廣泛適用于化工、環保、水處理、電力、煤礦等行業,請咨詢上海川滬閥門有限公司銷售部
上海川滬閥門有限公司是一家專業生產電動調節閥、氣動調節閥、電動球閥、氣動球閥、電動蝶閥、氣動蝶閥的廠家。歡迎來電咨詢:021-5186 3046

















